上品な紫が室内いっぱいに広がり、格調高い気品と華やかさをもたらします。
- 場所
2F
- 最大収容人数
700名
- 正餐
160名
- 立食
200名
- スクール
200名
- シアター
500名
- 口の字
64名
- #中会場
- #会議・セミナー
- #パーティ・宴会
- #法事・法宴
- #500~1,000名未満

2F
700名
160名
200名
200名
500名
64名
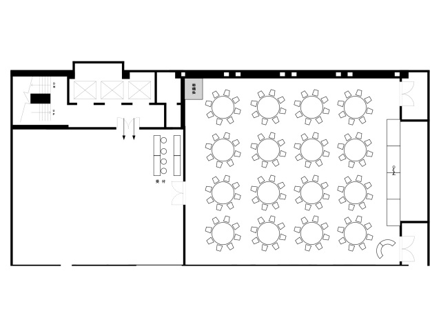
| 場所 | 面積 | 間口 | 奥行 | 高さ | 正餐 | 立食 | ロの字 | スクール | シアター |
|---|---|---|---|---|---|---|---|---|---|
| ホール | 323㎡ /97坪 | 16m | 19m | 4m | 160名 | 200名 | 64名 | 200名 | 500名 |
| ロビー併用 | 513㎡ /155坪 | 250名 | 300名 | 88名 | 250名 | 700名 |
※ロの字形式:2名掛け スクール形式:3名掛け









2F
836㎡
4m
700名
160名
200名
200名
500名
64名
可能。詳細は会場データをご参照ください。
A.スクリーン180インチ(3.6m×2.7m)プロジェクター
B.スクリーン180インチ(3.6m×2.7m)プロジェクター
※ロの字形式:2名掛け スクール形式:3名掛け
宴会・会議

