国際会議に対応できる、グレードの高さと風格。
最新設備を備えた価値ある空間 ―。
- 場所
4F
- 最大収容人数
1800名
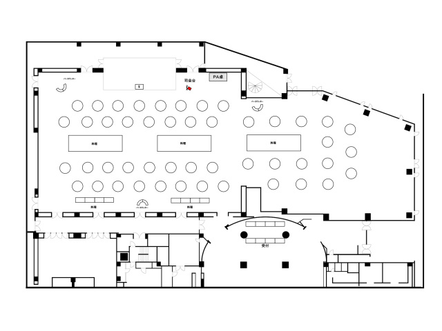
- 正餐
500名
- 立食
800名
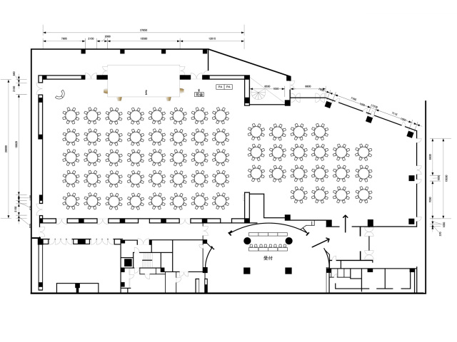
- スクール
600名
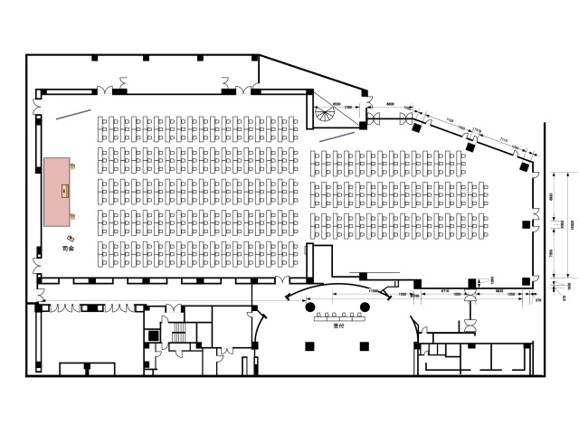
- シアター
1300名
- 口の字
124名
- #大会場
- #学会・国際会議
- #展示会・発表会
- #会議・セミナー
- #パーティ・宴会
- #1,500~1,800名未満




4F
1800名
500名
800名
600名
1300名
124名
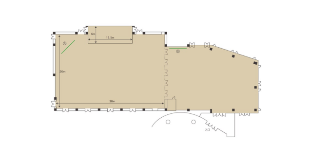
| 場所 | 面積 | 間口 | 奥行 | 高さ | 正餐 | 立食 | ロの字 | スクール | シアター |
|---|---|---|---|---|---|---|---|---|---|
| ホール | 1017㎡ /308坪 | 38m | 26m | 7m | 500名 | 800名 | 124名 | 600名 | 1300名 |
| ロビー併用 | 1689㎡ /512坪 | 750名 | 1200名 | 160名 | 900名 | 1800名 |
※ロの字形式:2名掛け スクール形式:3名掛け
-
ホールのみ





ロビー含む




4F
1017 ㎡
7m
1800名
500名
800名
600名
1300名
124名
可能。ロビー併用時の面積:1689㎡
※その他仕様は会場データを参照
可能。詳細はお問い合わせください。
A.スクリーン200インチ(4.4m×2.4m)プロジェクター
B.スクリーン200インチ(4.4m×2.4m)プロジェクター
・2会場仕切可能
・専用カーデン併設
※ロの字形式:2名掛け スクール形式:3名掛け
宴会・会議

